DEN Space Planning Standards
Denver, CO
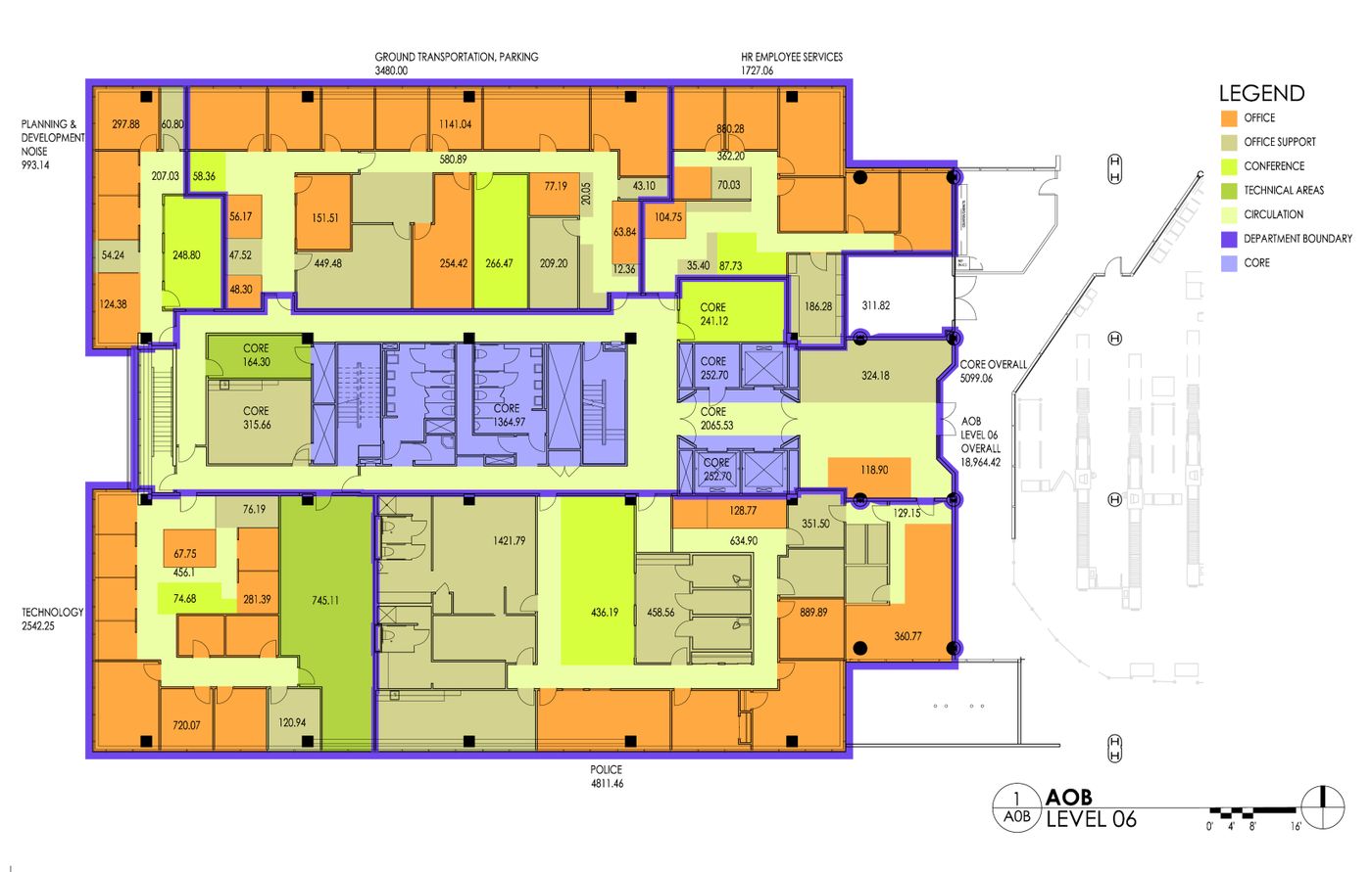
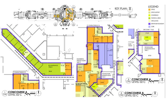
Our team was tasked with developing Office Space Planning Standards for Denver International Airport’s existing and future administrative offices. The abo co-op surveyed the Airport Office Building, Terminal, Concourses A, B, and C, and the Air Reserve Field Facility (ARFF 1). Because DEN is such a diverse workplace, this assignment presented many challenges. DEN, in many respects, is a self-contained city that operates 24 hours a day and contains every conceivable functional aspect of a city: administrative offices, transportation, maintenance, security, food service, infrastructure development, planning, and design.
The vision of DEN as an organization is to be a unified, collaborative team that is unmatched within the airport industry. Through research and evidence-based practices, the Space Planning Standards have produced planning guidelines to support this vision of collaboration and unity.
